Van droom naar werkelijkheid
Jouw tuin is de plek waar jij je thuis wilt voelen! Misschien betekent dat voor jou een tuin waar je bijna geen omkijken naar hebt óf juist een tuin waar je lekker in kunt werken.
Iedereen heeft andere wensen en voor elke wens is een passende tuin te ontwerpen!
Zet hier je titel neer
Evenhuis Tuinen denkt met je mee en samen komen we tot een tuin waar in jij je (weer) thuis voelt!
Neem vrijblijvend contact met mij op om te horen wat ik voor je kan betekenen.
VERBORGEN TEKST
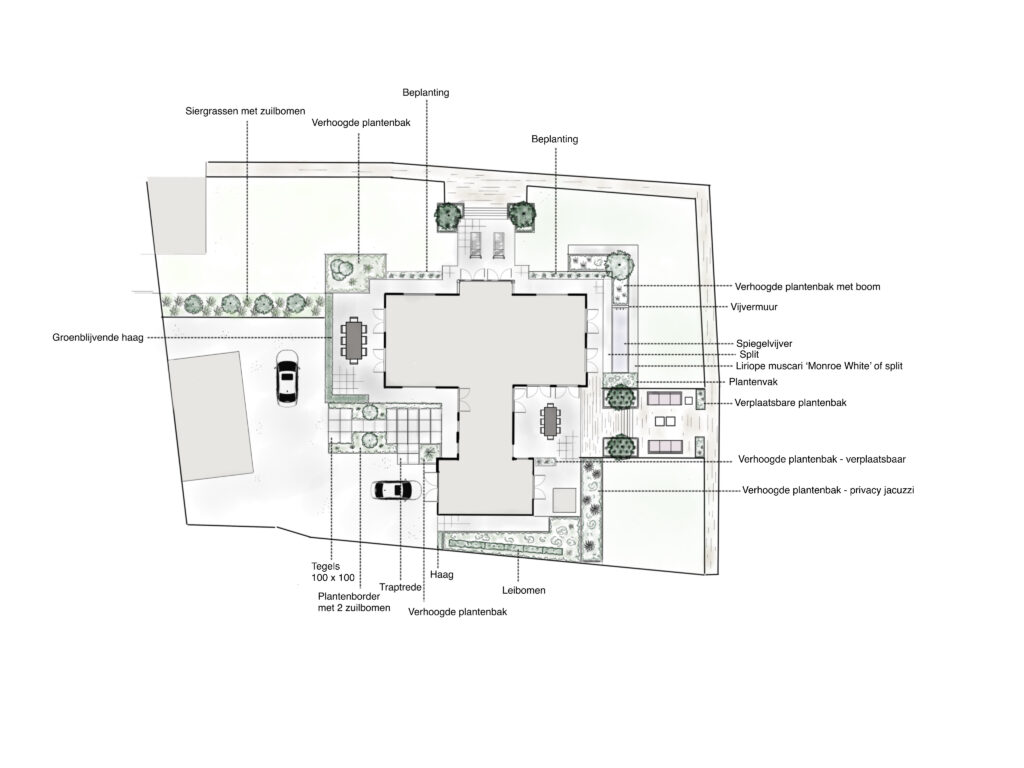
Jouw wensen vertaald naar een ontwerp
Om jouw wensen om te zetten in je eigen droomtuin is het belangrijk eerst duidelijk te weten wát deze wensen zijn.
In een oriënterend gesprek hoor ik graag wat jij wel én niet mooi vindt in een tuin. Waar zit je graag in de tuin, welke stijl vind jij mooi en wat is er nodig om van deze tuin jouw tuin te maken?
Ook bespreken we in dit gesprek wat jij verwacht van mij. Wil je alleen een tuinontwerp, een tuinontwerp inclusief beplantingsplan of óók gebruik maken van de plantservice van Evenhuis Tuinen? De keuze is aan jou!
Schetsontwerp
Na het eerste gesprek ga ik aan de slag. Hier begint het creatieve gedeelte voor jouw tuin!
Ik kijk naar de unieke mogelijkheden die de tuin biedt, samen met de uitgesproken tuinwensen vertaal ik dit in een schetsontwerp en enkele sfeerimpressies.
Definitief ontwerp
Het definitief ontwerp is in detail uitgewerkt. Denk aan de juiste maatvoeringen en materiaal gebruik. Met dit definitieve ontwerp kun je zélf aan de slag in je tuin óf de uitvoering overlaten aan een ervaren hovenier.
Tot in de puntjes...
Om het plaatje helemaal kloppend te krijgen, is het mooi om ook de juiste beplanting toe te passen in de tuin. De juiste beplanting komt het totaal beeld en de juiste sfeer ten goede!
In het beplantingsplan wordt rekening gehouden met jouw voorkeur én heel belangrijk, de voorkeur van de planten. Ik kijk naar de grondsoort, standplaats en combinatie van de planten, zodat de planten op de juiste plek het plaatje compleet maken!
Plantservice
De afgelopen jaren heb ik goede ervaringen opgedaan met een aantal kwekerijen in de omgeving. Van deze kwekerijen weet ik dat ze alleen kwaliteitsplanten leveren die met zorg zijn opgekweekt.
Ik kan de planten voor jou bestellen en zorgen dat ze bij je thuis geleverd worden. Aan de hand van het beplantingsplan kan jij zelf de planten op de juiste plekken in de tuin planten. Maar, hier wil ik je ook bij helpen!
